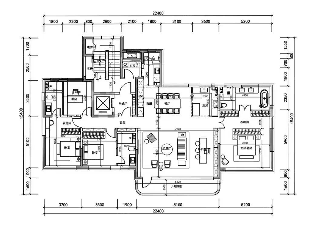
4室2厅4卫

480万/套

在售 全明格局阳台户型方正
关注

名称

凤鸣200

层高

3米

地址

天津市北辰区普济河道盛雅佳苑北侧约180米

楼栋

龙韵花园18

所属楼盘

龙曜城

4000616560转0645
免费致电,获取更多开盘优惠信息
电话咨询

户型评测

我要评分

8

评测推荐:优秀

空间布局

8

采光通风

8

房屋功能

8

户型评分

空间布局

8

采光通风

8

房屋功能

8

立即提交

户型解读

优势
【布局】 户型方正,超大面积

位置及周边配套

查看全部

位置

北辰-天穆镇 天津市北辰区普济河道盛雅佳苑北侧约180米

未找到相关信息
未找到相关信息
未找到相关信息
未找到相关信息
未找到相关信息
未找到相关信息

本楼盘其他户型推荐

猜你喜欢

楼盘卖点|中环线旁,4/7号线双地铁,小高+洋房舒适社区,精装交付,高端品质社区

楼盘卖点|低密度全洋房社区,双地铁+三个公园+外跨阳台 4.0架空层住宅产品

电话咨询 在线咨询