9.3分
更新于 2026.05.25
单价:约200000元/㎡
总价:约4500万/套
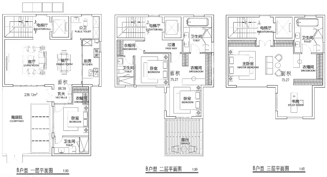
5室3厅3卫
在售
5室3厅3卫
在售
5室3厅3卫
在售
5室3厅3卫
在售
5室3厅3卫
在售幼儿园数量
51
小学数量
37
中学数量
51
医疗配套
143
购物场所
74
公园景点
39

占地面积
11000㎡
建筑面积
14000㎡
容积率
1.6
绿化率
35%
车位配比
1:3
物业费
6.8元/㎡/月
物业公司
漕越经济
毛坯
民用
民用
免责声明:
1、文中项目信息均来自开发商,价格受市场行情影响存在波动,最终项目信息以政府登记备案及项目开发商为准。
2、文中的距离均来自百度地图测距,与实际情况略有差异,仅供参考。
3、因时间、市场、政策等因素影响,文中项目信息仅供参考,不做市场交易依据使用。
4、文中所有图片均有版权,如需转载请注明来源。