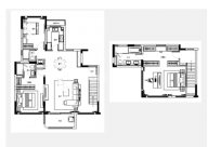
4室2厅2卫

1400万/套

在售 全明格局阳台
关注

名称

138

层高

3米

地址

上海市虹口区新市北路1345号

楼栋

新市南路1198

所属楼盘

虹盛里

4008896763转2494
免费致电,获取更多开盘优惠信息
电话咨询

户型评测

我要评分

8

评测推荐:优秀

空间布局

8

采光通风

8

房屋功能

8

户型评分

空间布局

8

采光通风

8

房屋功能

8

立即提交

户型解读

优势
【布局】 南北通透

位置及周边配套

查看全部

位置

虹口-江湾街道 上海市虹口区新市北路1345号

未找到相关信息
未找到相关信息
未找到相关信息
未找到相关信息
未找到相关信息
未找到相关信息

本楼盘其他户型推荐

猜你喜欢

楼盘卖点|由实力国匠中建打造,于虹口江湾将海派烟火与现代科技美学相融

电话咨询 在线咨询