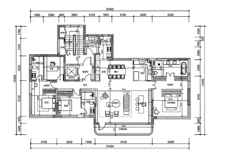
凤鸣200

在售 普通住宅 全明格局阳台户型方正
关注

物业类型

普通住宅

朝向

南北

楼栋

18

层高

3米

所属楼盘

龙曜城

户型解读

优势
【布局】:户型方正,超大面积

位置及周边配套

查看全部

位置

北辰 ·天穆镇 天津市北辰区普济河道盛雅佳苑北侧约180米

配套

咨询楼盘具体位置和周边设施情况

未找到相关信息
未找到相关信息
未找到相关信息
未找到相关信息
未找到相关信息
未找到相关信息

本楼盘其他户型推荐

电话咨询 在线咨询