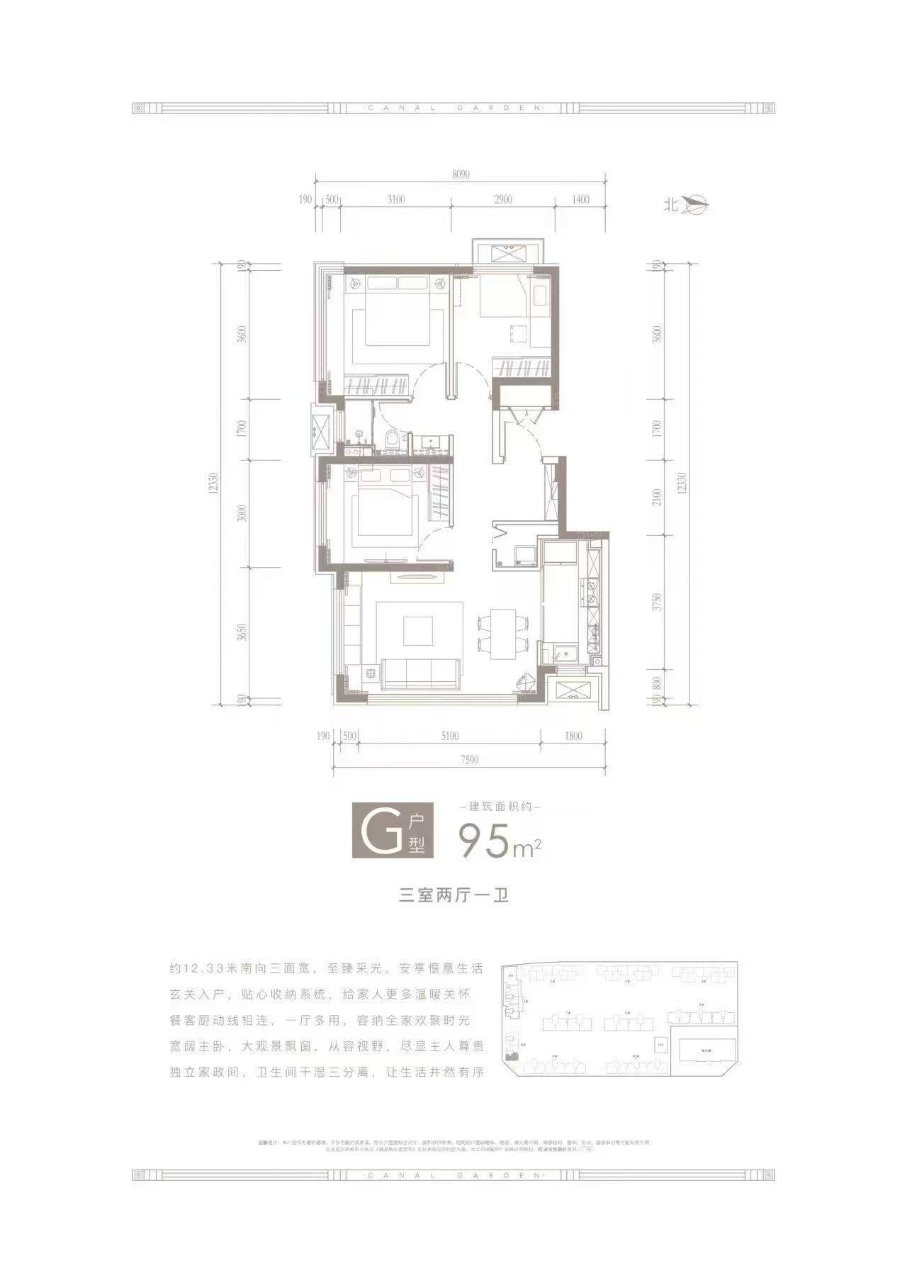
3室2厅1卫

471万/套

在售 全明格局餐客一体户型方正
关注

名称

G

层高

2.95米

地址

北京市通州区群芳中二街能建京玥兰园

楼栋

18

4008897258转0290
免费致电,获取更多开盘优惠信息
电话咨询

户型评测

我要评分

8

评测推荐:优秀

空间布局

8

采光通风

8

房屋功能

8

户型评分

空间布局

8

采光通风

8

房屋功能

8

立即提交

户型解读

优势
【布局】 南向三面宽,采光充足,布局合理

位置及周边配套

查看全部

位置

通州-临河里 北京市通州区群芳中二街能建京玥兰园

未找到相关信息
未找到相关信息
未找到相关信息
未找到相关信息
未找到相关信息
未找到相关信息

本楼盘其他户型推荐

猜你喜欢

楼盘卖点|副中心文旅板块,百年央企招商开发,高品质低密洋房,双地铁环绕。

楼盘卖点|运河商务区核心板块、紧邻运河两岸、国企开发,轴脉区位,悦享双板块资源利好

楼盘卖点|朝阳北路,地铁6号线沿线 一梯两户,6-11层洋房社区 国企开发,户型方正,品质保障

电话咨询 在线咨询