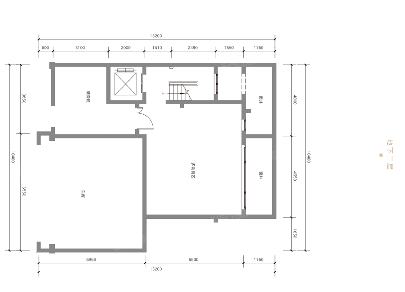
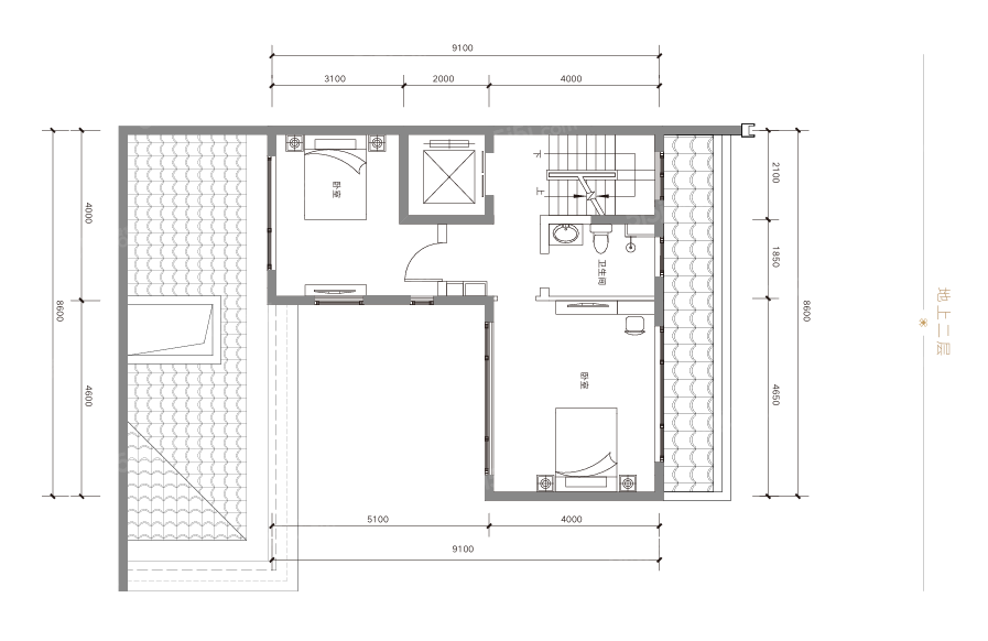
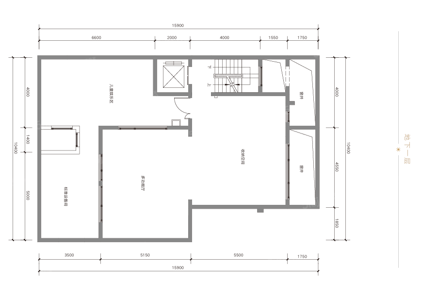
4室2厅3卫

2040万/套

售罄 全明格局明厨
关注

名称

A1

层高

3.3米

地址

北京市通州区机场高速杨林出口东南方向6公里

楼栋

62

所属楼盘

格拉斯小镇

4008897257转8104
免费致电,获取更多开盘优惠信息
电话咨询

户型评测

我要评分

8

评测推荐:优秀

空间布局

8

采光通风

8

房屋功能

8

户型评分

空间布局

8

采光通风

8

房屋功能

8

立即提交

户型解读

优势
【布局】 户型宽敞

位置及周边配套

查看全部

位置

通州-宋庄 北京市通州区机场高速杨林出口东南方向6公里

未找到相关信息
未找到相关信息
未找到相关信息
未找到相关信息
未找到相关信息
未找到相关信息

本楼盘其他户型推荐

猜你喜欢

楼盘卖点|得享城市副中心,亦庄,大兴机场商圈三重辐射坐拥政、文、娱、医多元资源

楼盘卖点|顺义城区在售商品房,低总价城市别墅,墅区洋房,配套完善

楼盘卖点|奥北别墅区,类独栋/双拼、紧邻温榆河、高挑空间,超大花园

电话咨询 在线咨询